設 計
設計の仕事

一般住宅(木造・鉄骨造)の設計
設計事務所としての主な仕事は
一般住宅を建築するにあたり必要な図面を作成することです。
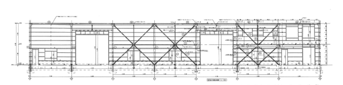
図面には、平面図・立面図の他、建築工事を行うために必要な
詳細図・構造図・電気配線図・設備図・施工図等があります。
自治体・行政に建築許可を申請する業務も行います。
オフィス・店舗・事業所・倉庫等(木造・鉄骨造)の設計
近年地元東広島では、
事業所の進出、移転、建て替え等が多くなっています。
松田建築設計事務所では、
適地さがしから地元ならではのネットワークで
情報を提供し、提案していきます。
専門職のネットワーク
地元工務店や、大工、左官、設備業者
それぞれの特性と得意分野の専門家との協業により
お客様に安心の価格と確かな品質の仕事でご満足いただけるよう
日々努めています。
実績紹介
